佳里透天

房子基本資料
案名B1佳里區番子寮朝北大地坪孝親房車墅 台南買屋專家 案號
地址台南市佳里區番子寮
銷售狀態帶看中售價
售1388萬
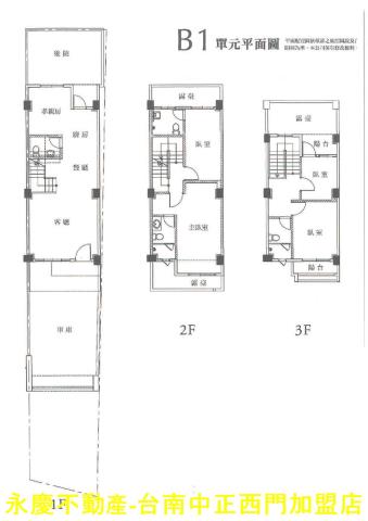
房子類型透天 總登記坪數43.176 坪
格局5房,2廳,4衛屋齡2年
每坪單價32.15萬/坪公設比
車位室內車庫法拍屋 不是
建物所在樓層共3樓管理費
管委會中庭
電梯 未知 是否為凶宅
300公尺內嫌惡設施 面前道路 8
面寬 縱深
邊間房子銷售來源不動產經紀人/專業仲介
房子特色

(1)基地地質改良樁加筏式基礎雙重抗震設計,再加全棟防水處理。



(2)前落地窗是5+5mm膠合玻璃隔音氣密再升級,保有家的寧靜。



(3)廚房採用櫻花廚具經典三機,衛浴為日系TOTO極簡衛浴。



(4)Kwikset四合一智慧電子鎖,指紋、密碼、一卡通皆能整合。



(5)近佳里市區,離塵不離城,生活機能優異,大地坪,好停車。

坪數說明
建物登記總坪數43.176土地登記總坪數48.064
主建物坪數40.438停車位坪數
附屬建物坪數2.738公共設施坪數
增建坪數地下室坪數
周邊環境
生活機能鄰近交通
鄰近地標公園綠地
鄰近學區延平國小,佳里國中捷運站
房子聯絡人資訊
聯絡人姓名永慶不動產中正西門店
(煩請告知聯絡人,您是在889房子網看到這則廣告,真摯感恩您的幫忙)
Line加入好友
手機
0911-559351(永慶不動產中正西門店)
所屬公司名稱永慶不動產中正西門加盟店
公司電話0911-559351 06-2212828公司傳真06-2215626
公司地址台南市中西區中正路45號
網址http://永慶不動產-中正西門店.house-info.com.tw
贊助商廣告
透天
台南佳里透天-1
台南佳里透天-1
台南佳里透天-2
台南佳里透天-2
台南佳里透天-3
台南佳里透天-3
台南佳里透天-4
台南佳里透天-4
台南佳里透天-5
台南佳里透天-5
台南佳里透天-6
台南佳里透天-6
台南佳里透天-7
台南佳里透天-7
台南佳里透天-8
台南佳里透天-8
台南佳里透天-9
台南佳里透天-9
台南佳里透天-10
台南佳里透天-10
台南佳里透天-11
台南佳里透天-11
台南佳里透天-12
台南佳里透天-12
台南佳里透天-13
台南佳里透天-13
台南佳里透天-14
台南佳里透天-14
物件留言
請注意,如果您詢問的內容與物件不相符合或是廣告,經過審核,系統將會直接刪除您的發問內容
等待圖示
檢舉物件不實
等待圖示
黃金曝光
相似物件

07-7963288客服電話
本房子網站為租用式開放仲介網站建置平台,僅提供房子仲介會員刊登-佳里透天-等房子/土地/廠房/法拍資訊參考,並不涉入任何諮詢、交易。物件(服務)聯絡人公佈的圖文影音資訊若有侵犯智財權或與客戶聯絡交易過程中若衍生民事或刑事等法律問題, 皆與本網站無關。
電話:07-7963288