台北信義區大樓法拍

房子基本資料
案名信義計畫區【冠德遠見】SRC造,信義路五段95號3樓-1 案號112吉157590
地址台北市信義區信義路五段95號3樓-1社區/大樓冠德遠見(冠德建設)
銷售狀態待標中售價
售6754萬
房子類型法拍大樓 總登記坪數52.61 坪
格局2房,2廳,2衛屋齡18年
每坪單價128.38萬/坪公設比
車位坡道平面法拍屋 本物件是法拍屋
拍次 : 1
開標日期 : 114/12/23
建物所在樓層3/27管理費
管委會中庭
電梯 是否為凶宅
300公尺內嫌惡設施 面前道路
面寬 縱深
邊間房子銷售來源不動產經紀人/專業仲介
房子特色
貸款才是決勝點,提供預審,保證核貸
千萬經理人,接任台灣不動產拍賣協會監事

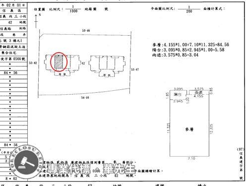
◆門牌:信義路五段95號3樓-1
◆主建物:25.58坪
◆附屬:2.61坪
◆公設:11.29坪
◆車位:13.13坪
【1車║坡平式║編號B2-92】
◆土地:7.40坪
◆土地現值【特定業務區■114年公告現值:1114833元/㎡】
◆房屋用途:SRC造/住家用
◆房屋樓層:所在3樓/總樓層27樓
◆房屋朝向:朝北

【案件特色】
◎信義計畫區核心地段、冠德遠見指標型社區
◎房屋格局:2房/2廳/2衛(此格局為原建設規劃或內政部實價登錄,僅供參考,以現況為準!)
◎交通動線:位於信義路五段,近象山站與主要幹道,開車與通勤動線良好
◎捷運站:象山站(150公尺),步行可達信義線與板南線轉乘便利
◎公車站牌:信義路五段沿線多線公車,可快速前往台北各行政區
◎生活機能:鄰近信義商圈、百貨商場、餐飲、娛樂、採買一次到位
◎鄰近學校:博愛國小、興雅國中(雙語)等學區完整
◎公園綠地:松德公園、信義綠園道與周邊綠地多、休閒散步方便
◎金融機構:信義計畫區銀行與金融機構密集辦理業務效率高
◎醫療診所:周邊診所與大型醫院資源完整、臺北市立聯合醫院

【社區簡介】
◎冠德建設指標作品、位於信義計畫區、核心地段
◎總戶數:122戶,社區規模完整管理成熟
◎建設公司:冠德建設
◎建築設計:李祖原建築師事務所,知名建築團隊規劃
◎營造公司:根基營造,大型甲級營造廠施工,結構品質佳
◎公共設施:接待大廳、中庭花園、交誼廳、會議室、健身房、游泳池、信箱區、垃圾集中處理、24小時管理

【法院筆錄】●點交情形→點交●
1‧2558建號建物現場查封時現為空屋狀態,無人居住使用,故拍定後點交,停車位位於地下2層,編號為92號,現已出租他人使用,並未簽定書面租約,每月租金為8000元,故停車位部分拍定後不點交,由拍定人自行解決。
2‧2544、2545建號建物均為公設,本件係拍賣應有部分,拍定後不點交,因公設部分應與專有部分一併為移轉登記,故建號共有人無優先承買權。《清償債務》

※無人買受時,酌減20%估算,概以執行單位公告為準
第一拍12/23底標價:6754萬
第二拍未定底標價:5404萬
第三拍未定底標價:萬

王牌經理人,十六年以上法拍經驗豐富
眼光最精準,代標多筆億元以上的案件
在地最深耕,資源豐富廣闊人脈執行力
協助自用者,找到理想實用的房屋圓夢
幫助投資人,創造物件最高投資報酬率
最專業團隊,讓您案件事半功倍又圓滿

【在地深耕,眼光精準,人脈廣闊】
■產權清楚、案件評估、排除瑕疵事故
■全程負責、快速交屋、拍後不被騷擾
■代墊利率6.3%、額度8成、手續費0.3%
■房貸利率2.65%、免排隊、立即撥款
■法拍屋代墊款、需要資金、歡迎找我

104法拍網|透明房訊|全國最大
◆規模最大◈歷史最久◆
全國七處分公司,300多位編制人員
成立於1986年,全國16家法院駐點
◆專業最強◈全國唯一◆
全國超過1800場授課專業講習
100坪倉庫,造冊拍賣遺留物
◆正派經營◈開立發票◆
營業員(99)登159091號
經紀人(96)年北市經證字01243號
一零四法拍網(股),統編28306523

能看屋的,網頁會註明。一般法拍屋查封之後無法入內參觀,可依據建物平面圖推斷室內格局是否方正,或參考樓上樓下鄰居房屋。(預約看屋留言,一律不回)
坪數說明
建物登記總坪數土地登記總坪數7.4
主建物坪數25.58停車位坪數13.13
附屬建物坪數2.61公共設施坪數11.29
增建坪數地下室坪數
房子聯絡人資訊
聯絡人姓名經理:華國峰 / 特助:李佩玟
(煩請告知聯絡人,您是在889房子網看到這則廣告,真摯感恩您的幫忙)
Line加入好友 Line加入好友
手機
0916-000-104(經理:華國峰 / 特助:李佩玟)
所屬公司名稱透明房訊 ,104法拍網(股)
公司電話(02)8262-5555 / (03)337-5555公司傳真全國直營,法拍專家
公司地址新北市土城區金城路二段396號11樓 / 桃園市桃園區莊敬路一段346號4樓
網址http://www.104法拍屋.tw
贊助商廣告
信義區大樓買賣
信義區法拍大樓-1
信義區法拍大樓-1
信義區法拍大樓-2
信義區法拍大樓-2
信義區法拍大樓-3
信義區法拍大樓-3
信義區法拍大樓-4
信義區法拍大樓-4
信義區法拍大樓-5
信義區法拍大樓-5
信義區法拍大樓-6
信義區法拍大樓-6
信義區法拍大樓-7
信義區法拍大樓-7
信義區法拍大樓-8
信義區法拍大樓-8
信義區法拍大樓-9
信義區法拍大樓-9
信義區法拍大樓-10
信義區法拍大樓-10
信義區法拍大樓-11
信義區法拍大樓-11
信義區法拍大樓-12
信義區法拍大樓-12
信義區法拍大樓-13
信義區法拍大樓-13
物件地圖
物件留言
請注意,如果您詢問的內容與物件不相符合或是廣告,經過審核,系統將會直接刪除您的發問內容
等待圖示
檢舉物件不實
等待圖示
黃金曝光
相似物件

07-7963288客服電話
本房子網站為租用式開放仲介網站建置平台,僅提供房子仲介會員刊登-台北信義區大樓法拍-等房子/土地/廠房/法拍資訊參考,並不涉入任何諮詢、交易。物件(服務)聯絡人公佈的圖文影音資訊若有侵犯智財權或與客戶聯絡交易過程中若衍生民事或刑事等法律問題, 皆與本網站無關。
電話:07-7963288