台北內湖華廈出售

房子基本資料
案名金矽谷 No.26|內湖指標級企業總部地標 案號No.26
地址台北市內湖區新湖一路整棟
銷售狀態帶看中售價
售18億9000萬
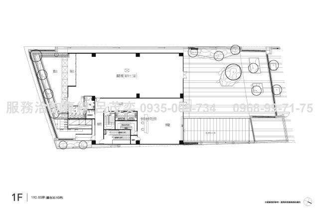
房子類型華廈_廠辦_商辦 總坪數2086.92 坪
格局開放格局屋齡預售屋
每坪單價90.56萬/坪公設比待確認
車位坡道平面法拍屋 不是
建物所在樓層1樓~8樓/8樓管理費未定
管委會中庭沒有
電梯 是否為凶宅 不是
300公尺內嫌惡設施 面前道路 20米
面寬 縱深
邊間房子銷售來源不動產經紀人/專業仲介
房子特色
🏢【金矽谷No.26|內湖指標級企業總部地標】

一、基地與區位優勢

🏡座落於內湖「工三特區」核心軸帶,鄰近環東大道、提頂大道與內湖科技園區主幹道,為北市第三種工業區(工三)廠辦用地。

近捷運港墘站/昆陽站/Y35與SB07捷運站預定地、內湖交流道、環東大道,串聯南港、信義計畫區與松山機場商圈,交通四通八達。

二、產品規格與建築亮點

🏡樓層規劃:地上8層,地下4層一層兩戶

🏡可售樓層:全棟預售中

🏡單層面積:約83~275坪,可彈性分層購買或整層整棟規劃

🏡使用分區:第三種工業區(可作研發、廠辦、商務辦公、倉儲物流)

🏡車位:62個可售車位/4個裝卸車位

🏡結構規劃:CNSSN等級耐震鋼材鋼骨制震結構,挑高大氣,承重設計優於一般辦公產品

🏡建築設計:外觀採玻璃帷幕立面搭配金屬飾板,兼具現代感與節能環保效能



三、功能定位與空間彈性

💼企業總部首選

🏡可整層設立企業總部,打造自有品牌大樓門面

🏡單層80坪起,符合大型部門或跨國企業分區辦公需求

🏡可結合研發、展示、會議、辦公一體化空間

🏭廠辦使用彈性大

🏡第三種工業區用途完整,可核准設立登記研發、倉儲、製造相關公司

🏡層高充裕,便於設置實驗室、輕量製程、伺服主機或物流配套

🏡空間可依企業需求隔間、整合貨梯與卸貨動線



四、景觀與生活機能

🏡緊鄰「成美左岸河濱公園」,部分樓層享有開闊水岸景觀

🏡周邊生活機能成熟:7-Eleven、星巴克、餐飲聚集、健身中心

🏡鄰近內湖Costco、家樂福、CityLink商圈,企業員工生活便利

五、投資與發展潛力

🏡內湖工三區可供買售的新屋稀少,自用與投資雙利基

🏡區內多家上市櫃企業總部進駐,形成聚落效應

🏡高車位比+整層彈性規劃=優質企業自購產品

🏡預期南港科學園區與北士科串聯效應,將持續帶動

內湖廠辦價值

💡「坐擁成美左岸,打造企業專屬地標。」

🏢「整層規劃・車位充足・結構安全・視野開闊」

🚀「工三核心・研發總部新指標・金矽谷NO.26」

👉🏽有需求的您~歡迎來電洽詢預約看屋!!謝謝您!

☎️洽詢預約專線:0935-009-734呂先生

🏡我們將竭誠為您服務,讓您實現居住夢想,開啟全新生活!🏡✨

經紀人證照字號:(91)北縣字第583號

僑茂房屋仲介股份有限公司

珍惜所託善德傳家

~僑茂不動產銷售租賃中物件網站~

https://www.cmhousing.com.tw/agent/0935009734

歡迎您加入FB~築夢安居交流社團~PO文分享討論免費刊登廣告創造多贏商機!!

https://www.facebook.com/groups/632016442596258

LINE>>>電話搜尋0935009734加好友~感謝您!!

坪數說明
建物登記總坪數2086.92土地登記總坪數450.16
主建物坪數1121.77停車位坪數
附屬建物坪數36.13公共設施坪數929.09
增建坪數地下室坪數
周邊環境
生活機能美聯社/成美左岸河濱公園/Costco、家樂福、CityLink 商圈鄰近交通捷運:Y35西松站(施工中) 公車:行善路潭美路口站
鄰近地標舊宗路麥當勞公園綠地文心公園
鄰近學區潭美國小,三民國中捷運站西松
房子聯絡人資訊
聯絡人姓名呂茂奕
(煩請告知聯絡人,您是在889房子網看到這則廣告,真摯感恩您的幫忙)
Line加入好友 Line加入好友
手機
0968-997-175(呂茂奕)
所屬公司名稱呂茂奕房地產服務網
公司電話0935009734公司傳真
公司地址台北市中正區新生南路一段60號六樓
網址http://www.marklu.idv.tw
贊助商廣告
台北大安區房屋,台北大安區房屋出售,台北大安區房屋資訊
新北法拍屋,新北市法拍屋,新北法院法拍屋,新北法拍屋查詢公告
台北華廈
內湖華廈-1
內湖華廈-1
內湖華廈-2
內湖華廈-2
內湖華廈-3
內湖華廈-3
內湖華廈-4
內湖華廈-4
內湖華廈-5
內湖華廈-5
內湖華廈-6
內湖華廈-6
內湖華廈-7
內湖華廈-7
內湖華廈-8
內湖華廈-8
內湖華廈-9
內湖華廈-9
內湖華廈-10
內湖華廈-10
內湖華廈-11
內湖華廈-11
內湖華廈-12
內湖華廈-12
內湖華廈-13
內湖華廈-13
內湖華廈-14
內湖華廈-14
內湖華廈-15
內湖華廈-15
物件地圖
物件留言
請注意,如果您詢問的內容與物件不相符合或是廣告,經過審核,系統將會直接刪除您的發問內容
等待圖示
檢舉物件不實
等待圖示
黃金曝光

07-7963288客服電話
本房子網站為租用式開放仲介網站建置平台,僅提供房子仲介會員刊登-台北內湖華廈出售-等房子/土地/廠房/法拍資訊參考,並不涉入任何諮詢、交易。物件(服務)聯絡人公佈的圖文影音資訊若有侵犯智財權或與客戶聯絡交易過程中若衍生民事或刑事等法律問題, 皆與本網站無關。
電話:07-7963288