|
|
| 房子基本資料 |
|---|
| 案名 | 文化中心~稀有釋出透天車庫,售1188萬 | 案號 | 3989 |
|---|
| 地址 | 台南市東區中華東路三段 |
|---|
| 銷售狀態 | 帶看中 | 售價 | 售1388萬售1188萬 |
|---|
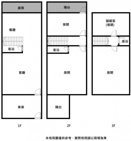
| 房子類型 | 透天_別墅 | 總登記坪數 | 38.46 坪 |
|---|
| 格局 | 4房,2廳,3衛,2陽台,1廚房 | 屋齡 | 36年 |
|---|
| 每坪單價 | 30.89萬/坪 | 公設比 | |
|---|
| 車位 | 室內車庫 | 法拍屋 | 不是 |
|---|
| 建物所在樓層 | 共3樓 | 管理費 | |
|---|
| 管委會 | 沒有 | 中庭 | 沒有 | | 電梯 | 沒有 | 是否為凶宅 | 不是 | | 300公尺內嫌惡設施 | | 面前道路 | 6米路 | | 面寬 | | 縱深 | | | 邊間 | | 房子銷售來源 | 不動產經紀人/專業仲介 |
|---|
| 房子特色 | 近文化中心~中華東路三段~崇明14街~東區~榮譽街 |
|---|
| 坪數說明 |
|---|
| 建物登記總坪數 | 38.46 | 土地登記總坪數 | 25.34 |
|---|
| 主建物坪數 | | 停車位坪數 | |
|---|
| 附屬建物坪數 | | 公共設施坪數 | |
|---|
| 增建坪數 | | 地下室坪數 | |
|---|
| 周邊環境 |
|---|
| 生活機能 | | 鄰近交通 | |
|---|
| 鄰近地標 | | 公園綠地 | |
|---|
| 鄰近學區 | 崇學國小,崇明國小,崇明國中 | 捷運站 | |
|---|
| 房子聯絡人資訊 |
|---|
| 聯絡人姓名 | 陳盈秀 (煩請告知聯絡人,您是在889房子網看到這則廣告,真摯感恩您的幫忙) | Line加入好友 | |
|---|
| 手機 |  0928-010-990(陳盈秀) | 所屬公司名稱 | 誠昱不動產企業社(住商成大東興店) |
|---|
| 公司電話 | 0928010990 (LINE) | 公司傳真 | |
|---|
| 公司地址 | 台南市永康區小北路30號 |
|---|
| 網址 | http://www.台南秀秀房仲網.tw |
|---|
贊助商廣告
台南透天買賣
東區透天-1 東區透天-2
|
|
|
|
物件地圖
|
物件留言
請注意,如果您詢問的內容與物件不相符合或是廣告,經過審核,系統將會直接刪除您的發問內容
|
|
檢舉物件不實
|
|
黃金曝光
 - 透天 / 5房
- 55坪
- 售1980萬
|
|
相似物件
 - 透天 / 2房
- 19.6坪
- 售738萬
 - 透天 / 4房
- 46.66坪
- 售1088萬
 - 透天_別墅_套房 / 4房
- 41.85坪
- 售1380萬
 - 透天_別墅 / 4房
- 48.765坪
- 售998萬
|