台南透天
首頁
|
申請房仲網站
|
房子導覽
|
土地導覽
|
法拍屋導覽
|
法拍地導覽
|
廠房導覽
|
房仲導覽
首頁
台北
新北
基隆
宜蘭
花蓮
桃園
新竹
苗栗
台中
南投
彰化
雲林
嘉義
台南
高雄
屏東
澎湖
台東
現在位置:
首頁
›
台南房子
›
東區房子
›
台南透天-台南市東區崇善11街
最後更新:17小時內
檢舉物件不實
|
列印
|
物件諮詢
台南透天
東區透天
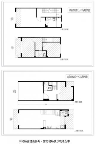
房子基本資料
案名
崇善商圈-孝親裝潢透天車庫,售1980萬
案號
4002
地址
台南市東區崇善11街
銷售狀態
帶看中
售價
售1980萬
房子類型
透天_別墅
總登記坪數
33.39 坪
格局
4房
,2廳,4衛,4陽台,1廚房
屋齡
46年
每坪單價
59.3萬/坪
公設比
車位
室內車庫
法拍屋
不是
建物所在樓層
共4樓
管理費
管委會
沒有
中庭
沒有
電梯
沒有
是否為凶宅
不是
300公尺內嫌惡設施
面前道路
8米路
面寬
縱深
邊間
不是
房子銷售來源
不動產經紀人/專業仲介
房子特色
近崇善路-8米路
1.整棟重新整理+增建,實際使用
2.空間大幅提升,格局方正,動線佳
3.一樓孝親房+有天井+二樓延伸露台
4.屋內保有自然光,乾爽不潮溼
5.仁和商圈,生活機能完整,採買便利
6.崇善商圈近學區,外食方便,診所林立,生活便利滿分
坪數說明
建物登記總坪數
33.39
土地登記總坪數
17.84
主建物坪數
停車位坪數
附屬建物坪數
公共設施坪數
增建坪數
地下室坪數
周邊環境
生活機能
鄰近交通
鄰近地標
公園綠地
鄰近學區
德高國小,崇明國中
捷運站
房子聯絡人資訊
聯絡人姓名
陳盈秀
(煩請告知聯絡人,您是在889房子網看到這則廣告,真摯感恩您的幫忙)
Line加入好友
手機
0928-010-990(陳盈秀)
所屬公司名稱
誠昱不動產企業社(住商成大東興店)
公司電話
0928010990 (LINE)
公司傳真
公司地址
台南市永康區小北路30號
網址
http://www.台南秀秀房仲網.tw
贊助商廣告
透天買賣
台南透天-1
台南透天-2
台南透天-3
台南透天-4
台南透天-5
台南透天-6
台南透天-7
台南透天-8
台南透天-9
台南透天-10
台南透天-11
台南透天-12
台南透天-13
台南透天-14
物件留言
請注意,如果您詢問的內容與物件不相符合或是廣告,經過審核,系統將會直接刪除您的發問內容
檢舉物件不實
黃金曝光
仁德忠義路
透天 / 5房
55坪
售1980萬
仁德忠義路
透天 / 4房
47.96坪
售1800萬
相似物件
中西區赤崁街
透天 / 4房
26.26坪
售1588萬
中西區永華一街
透天 / 3房
38.74坪
售1980萬
新化大同街
透天
53.36坪
售1980萬
永康永二街
透天 / 5房
56.667坪
售1780萬
請注意:此案件已下架
資料處理中,請稍後...