|
|
| 房子基本資料 |
|---|
| 案名 | 士林區 忠勇街 【郭氏林氏大樓】雙車位 福志公園 | 案號 | 114強36522 114/12/22(一)14:30 |
|---|
| 地址 | 台北市士林區忠勇街40巷4弄1號7樓 | 社區/大樓 | 士林郭氏林氏新建大樓 |
|---|
| 銷售狀態 | 待標中 | 售價 | 售6000萬 |
|---|
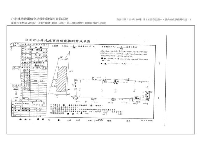
| 房子類型 | 法拍大樓 | 總登記坪數 | 120.43 坪 |
|---|
| 格局 | | 屋齡 | 21年 |
|---|
| 每坪單價 | 49.82萬/坪 | 公設比 | |
|---|
| 車位 | 有2車位 | 法拍屋 | 本物件是法拍屋 拍次 : 第二拍 點交 開標日期 : 2025/12/22(一)14:30
|
|---|
| 建物所在樓層 | 7樓/共8樓 | 管理費 | |
|---|
| 管委會 | | 中庭 | 沒有 | | 電梯 | 有 | 是否為凶宅 | 不是 | | 300公尺內嫌惡設施 | | 面前道路 | | | 面寬 | | 縱深 | | | 邊間 | 是 | 房子銷售來源 | 不動產經紀人/專業仲介 |
|---|
| 房子特色 | 【法院筆錄內容】 1‧10841建號拍定後,如租約已屆期則點交。
2‧民國114年5月27日現場查封時,債務人在場稱建物出租他人,並提出租賃契約影本附卷,租賃期間自113年3月15日起至115年3月14日止,月租金17萬元。停車位為編號3號及4號,實際為一個機械停車位,因係拍賣共有部分,應由全體區分所有權人協議使用分管方法,故停車位不點交。惟現在實際情形如何,仍請應買人自行查明注意。
3‧投標人應自行查明債務人有無積欠管理費,並注意拍定後民法第826條之1第3項規定之適用問題。
《清償債務》
【保證金】
1200萬 【拍賣履歴】
一拍2025/10/27流標底標價格7500萬
二拍2025/12/22底標價格6000萬
三拍底標價格4800萬
四拍底標價格3840萬
【焦點法拍履歴】
👩🏻⚖️從業二十年以上經驗|競競業業|正派經營
🎯投標準備⇥法拍流程說明|標單填寫|案件現場勘查有無特殊情事|成本評估分析
💰銀行貸款⇥法拍物件估價|投標人財力評估|銀行代墊款協助辦理|最高八成
🏡拍定得標⇥強制執行書狀、履勘陳報書狀往返|債務人搬遷協商|遺留物造冊查估
🎁委託代標⇥免費|委託代標未得標⇥免費
🏢鑫創資產管理有限公司
顏麗杏0911-965339營業員證號:(101)登字第212862號
連真甄0909-031993營業員證號:(101)登字第192002號
更多物件☞焦點法拍
經紀人李彥槿:109北市經證字第02110號 |
|---|
| 坪數說明 |
|---|
| 建物登記總坪數 | 120.43 | 土地登記總坪數 | 32.37 |
|---|
| 主建物坪數 | 66.18 | 停車位坪數 | |
|---|
| 附屬建物坪數 | 7.53 | 公共設施坪數 | 46.72 |
|---|
| 增建坪數 | | 地下室坪數 | |
|---|
| 房子聯絡人資訊 |
|---|
| 聯絡人姓名 | 小顏 (煩請告知聯絡人,您是在889房子網看到這則廣告,真摯感恩您的幫忙) | Line加入好友 | |
|---|
| 手機 |  0911-965-339(小顏) | 所屬公司名稱 | 鑫創資產管理有限公司 |
|---|
| 公司電話 | | 公司傳真 | |
|---|
| 公司地址 | 新北市新莊區中環路二段423號一樓 |
|---|
| 網址 | http://www.1314home.tw |
|---|
贊助商廣告
士林大樓買賣
台北法拍大樓-1 台北法拍大樓-2 台北法拍大樓-3 台北法拍大樓-4 台北法拍大樓-5 台北法拍大樓-6 台北法拍大樓-7 台北法拍大樓-8 台北法拍大樓-9 台北法拍大樓-10 台北法拍大樓-11
|
|
|
|
物件地圖
|
物件留言
請注意,如果您詢問的內容與物件不相符合或是廣告,經過審核,系統將會直接刪除您的發問內容
|
|
檢舉物件不實
|
|
黃金曝光
 - 大樓
- 55.28坪
- 售2688萬
 - 大樓_華廈_法拍大樓
- 120.43坪
- 售6055萬
 - 大樓
- 49.86坪
- 售3852萬
 - 大樓
- 89.74坪
- 售7449萬
|
|
相似物件
 - 大樓
- 112.21坪
- 售5990萬
 - 大樓_士林官邸花園 / 4房
- 120.43坪
- 售6055萬
 - 大樓
- 7500坪
- 售6000萬
 - 大樓 / 4房
- 74.76坪
- 售6103萬
|