新北市樹林區大樓法拍

房子基本資料
案名樹林區 學府路 【中悅維也納】雙車位 北大生活圈 案號114助辰6188 114/12/17(三) 14:30流標
地址新北市樹林區學府路210號6樓社區/大樓中悅維也納(中悅建設)
銷售狀態議價中售價
售5352萬5000元售4282萬
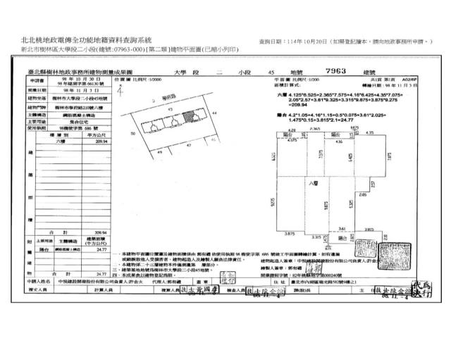
房子類型法拍大樓 總登記坪數115.45 坪
格局0房屋齡16年
每坪單價37.09萬/坪公設比
車位有2車位法拍屋 本物件是法拍屋
拍次 : 第二拍 點交
開標日期 : 2025/12/17(三) 14:30流標
建物所在樓層6樓/共23樓管理費
管委會中庭
電梯 是否為凶宅
300公尺內嫌惡設施 面前道路
面寬 縱深
邊間不是房子銷售來源不動產經紀人/專業仲介
房子特色

【法院筆錄內容】



1‧拍賣標的由債務人與其家人自住,拍定後應予點交。



2‧另鑑定報告勘查並未入室,無法得之勘估標的內部是否有嚴重漏水、地震受創或火災受損等事宜,僅以外觀現況判斷。又查詢公開資訊網站,現未查得本建物有海砂屋、輻射屋、地震受創、非自然死亡之列管足以影響交易之特殊情事,實際情形仍請投標人至現場自行查明注意。



3‧投標人應自行查明債務人有無積欠工程受益費、水電瓦斯費、管理費、公共基金等,應依公寓大廈管理條例第24條規定辦理,並注意拍定後民法第799之1條第4項規定之適用問題。



4‧本件如有停止、撤回、撤銷、延緩執行、足額清償等事由,且該事由確實發生於本案拍定前,縱已宣布拍定,本院亦得撤銷拍定,無息返還已繳交之款項,當事人均不得異議,不同意者,請勿參與投標應買。



5‧刊登於網站或其他公告處所之公告內容如與本院公告欄張貼之公告內容不符時,一律以本院公告欄張貼之拍賣公告內容為準。



6‧拍賣之不動產如於查封後經地政機關實施重測,其面積應以重測結果(地籍圖)為準,拍定後債權人、債務人、拍定人或其他關係人均不得以面積增減請求增減價金或聲請撤銷拍賣。



《給付票款》






【保證金】

856.4萬


【拍賣履歴】

一拍2025/11/19流標底標價格5352.5萬

二拍2025/12/17流標底標價格4282萬

三拍底標價格3425.6萬

四拍底標價格2740.5萬



【焦點法拍履歴】

👩🏻‍⚖️從業二十年以上經驗|競競業業|正派經營

🎯投標準備⇥法拍流程說明|標單填寫|案件現場勘查有無特殊情事|成本評估分析

💰銀行貸款⇥法拍物件估價|投標人財力評估|銀行代墊款協助辦理|最高八成

🏡拍定得標⇥強制執行書狀、履勘陳報書狀往返|債務人搬遷協商|遺留物造冊查估

🎁委託代標⇥免費|委託代標未得標⇥免費



🏢鑫創資產管理有限公司

顏麗杏0911-965339營業員證號:(101)登字第212862號

連真甄0909-031993營業員證號:(101)登字第192002號

更多物件☞焦點法拍



經紀人李彥槿:109北市經證字第02110號

坪數說明
建物登記總坪數115.45土地登記總坪數15.81
主建物坪數63.51停車位坪數16.86
附屬建物坪數7.49公共設施坪數27.59
增建坪數地下室坪數
房子聯絡人資訊
聯絡人姓名小顏
(煩請告知聯絡人,您是在889房子網看到這則廣告,真摯感恩您的幫忙)
Line加入好友
手機
0911-965-339(小顏)
所屬公司名稱鑫創資產管理有限公司
公司電話公司傳真
公司地址新北市新莊區中環路二段423號一樓
網址http://www.1314home.tw
贊助商廣告
大樓出售
樹林大樓法拍-1
樹林大樓法拍-1
樹林大樓法拍-2
樹林大樓法拍-2
樹林大樓法拍-3
樹林大樓法拍-3
樹林大樓法拍-4
樹林大樓法拍-4
樹林大樓法拍-5
樹林大樓法拍-5
樹林大樓法拍-6
樹林大樓法拍-6
樹林大樓法拍-7
樹林大樓法拍-7
樹林大樓法拍-8
樹林大樓法拍-8
樹林大樓法拍-9
樹林大樓法拍-9
樹林大樓法拍-10
樹林大樓法拍-10
樹林大樓法拍-11
樹林大樓法拍-11
物件地圖
物件留言
請注意,如果您詢問的內容與物件不相符合或是廣告,經過審核,系統將會直接刪除您的發問內容
等待圖示
檢舉物件不實
等待圖示
黃金曝光
相似物件

07-7963288客服電話
本房子網站為租用式開放仲介網站建置平台,僅提供房子仲介會員刊登-新北市樹林區大樓法拍-等房子/土地/廠房/法拍資訊參考,並不涉入任何諮詢、交易。物件(服務)聯絡人公佈的圖文影音資訊若有侵犯智財權或與客戶聯絡交易過程中若衍生民事或刑事等法律問題, 皆與本網站無關。
電話:07-7963288