新北市樹林區大樓法拍

房子基本資料
案名樹林區北大特區【 中悅維也納】學府路大樓 案號114助辰6188
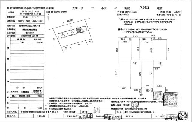
地址新北市樹林區學府路210號6樓<23>社區/大樓中悅維也納(中悅建設)
銷售狀態待標中售價
售5352萬售4282萬
房子類型法拍大樓 總登記坪數115.45 坪
格局屋齡16年
每坪單價37.09萬/坪公設比
車位法拍屋 本物件是法拍屋
拍次 : 第二拍
開標日期 : 114/12/17
建物所在樓層6樓/共23樓管理費
管委會中庭
電梯 未知 是否為凶宅
300公尺內嫌惡設施 面前道路
面寬 縱深
邊間房子銷售來源不動產經紀人/專業仲介
房子特色

▲拍賣公告:新北法院
▲拍賣標的物:新北市樹林區學府路210號6樓<23>
▲【謄本資料】:
建物登記:總坪數115.45坪主建坪63.51坪,附屬坪7.49坪,停車坪16.86坪,公設坪27.59坪
▲【法院筆錄】:拍賣標的由債務人與其家人自住,拍定後應予點交。
▲【生活機能】:
▲【拍次說明】:
標售拍次(目前拍次底價):
第一拍底價:5352萬
第二拍底價:4282萬
第三拍底價:
拍賣日期:114/12/17
▲台北∣新北∣桃園∣新竹
★Houseinfo:http://www.xn--ogt54mdnjqrqpix.tw/
▲【代標服務】
<過濾案件>追蹤拍賣日期...
<評估案件>投標全場陪同及標價最後建議...
<包辦交屋>與法院協商現住人交屋事項...
<代墊尾款>辦理銀行代墊及投標尾款手續...

※此案件為法拍屋無法看屋,實際狀況以法院筆錄為主。
詳細資訊了解請撥李小姐(02)8260-2416|0986-508652
財欣不動產管理顧份有限公司【統一編號】28306523
坪數說明
建物登記總坪數115.45土地登記總坪數
主建物坪數63.51停車位坪數16.86
附屬建物坪數7.49公共設施坪數27.59
增建坪數地下室坪數
周邊環境
生活機能北大特區,距北大高中步行約4分鐘,離三鶯二橋車程約2分鐘,興建中捷運三鶯線LB06站(三峽/國家教育研究院)、恩主公醫院、三峽交流道車程約5~7分鐘鄰近交通
鄰近地標公園綠地
鄰近學區捷運站
房子聯絡人資訊
聯絡人姓名李小姐
(煩請告知聯絡人,您是在889房子網看到這則廣告,真摯感恩您的幫忙)
Line加入好友 Line加入好友
手機
0986-508-652(李小姐)
所屬公司名稱財欣不動產管理顧問有限公司/專業代標/合法經紀業者
公司電話聯絡電話:02-82602416 / 0986508652公司傳真
公司地址新北市土城區金城路二段396號11樓/桃園市莊敬路一段346號4樓
網址http://www.法拍屋代標推薦.tw
贊助商廣告
售大樓
新北樹林大樓法拍-1
新北樹林大樓法拍-1
新北樹林大樓法拍-2
新北樹林大樓法拍-2
新北樹林大樓法拍-3
新北樹林大樓法拍-3
新北樹林大樓法拍-4
新北樹林大樓法拍-4
物件地圖
物件留言
請注意,如果您詢問的內容與物件不相符合或是廣告,經過審核,系統將會直接刪除您的發問內容
等待圖示
檢舉物件不實
等待圖示
黃金曝光
相似物件

07-7963288客服電話
本房子網站為租用式開放仲介網站建置平台,僅提供房子仲介會員刊登-新北市樹林區大樓法拍-等房子/土地/廠房/法拍資訊參考,並不涉入任何諮詢、交易。物件(服務)聯絡人公佈的圖文影音資訊若有侵犯智財權或與客戶聯絡交易過程中若衍生民事或刑事等法律問題, 皆與本網站無關。
電話:07-7963288