新北市汐止區商辦法拍

房子基本資料
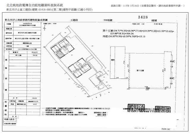
案名新北市汐止區大同路一段239號15樓【台灣科學園區】6車位 案號114實94575
地址新北市汐止區大同路一段239號15樓社區/大樓台灣科學園區(德林建設)
銷售狀態待標中售價
售9000萬
房子類型法拍商辦 總坪數289.56 坪
格局0房屋齡14年
每坪單價31.08萬/坪公設比
車位法拍屋 本物件是法拍屋
拍次 : 1
開標日期 : 115/04/22(三) 下午14:30
建物所在樓層15樓/共17樓管理費
管委會中庭
電梯 是否為凶宅 不是
300公尺內嫌惡設施 面前道路
面寬 縱深
邊間房子銷售來源不動產經紀人/專業仲介
房子特色
▌地址

新北市汐止區大同路一段239號15樓



▌公告內容

辦理法院|士林

案號|114實94575

拍賣時間|115/04/22(三)下午14:30

拍次|1拍

點交否|點交



▌拍賣情況

拍賣中



▌產權資料

社區名|台灣科學園區

類型|大樓

樓層|15/17

屋齡|14

權狀坪|289.56

室內坪|157.15

公設坪|95.89

土地坪|50.42

增建坪|

車位|6

車位坪|36.52



▌拍賣資料

拍賣底價|9000萬元

保證金|1800萬元

單價/坪|31.1萬元

標別|



▌預估拍次

一拍價格|9000.0萬元|26.5萬/坪

預估二拍|7200.0萬元|21.2萬/坪

預估三拍|5760.0萬元|17.0萬/坪

預估應買|5760.0萬元|17.0萬/坪

預估四拍|4608.0萬元|13.6萬/坪



▌法院筆錄

1‧1418建號拍定後點交。

2‧民國114年12月4日現場查封時,第三人即實質債務人立治科技股份有限公司之員工淩○惠在場,稱房屋部分出租星隼光學股份有限公司,部分放置立治科技股份有限公司及藍摩半導體股份有限公司之物品;第三人即星隼光學股份有限公司員工張○如在場稱係114年7月遷入,嗣陳報自114年6月1日起承租,惟所提出之租賃契約記載租賃期間係自114年12月1日起至117年5月31日止。另配賦之停車位編號285、286、287、299、300、301位於地下1樓,債務人陳報均已出租予第三人劉○世,租賃期間自114年10月1日至117年5月31日,並提出租賃契約為證。因上開租賃契約均係訂立於本件114年9月25日查封之後,不得對抗債權人,故建物拍定後點交。惟現在實際情形如何,仍請應買人自行查明注意。

3‧投標人應自行查明債務人有無積欠管理費,並注意拍定後民法第826條之1第3項規定之適用問題。

《拍賣抵押物》







法拍代標專家TORO|18年法拍屋經驗,專業代標、合法透明、成功率高

✅專欄人物-黃瑋諭

在法拍市場中,資訊不對稱、法律風險、投標策略失誤,往往讓投資人錯失良機,甚至承擔不必要的風險。

選擇一位真正專精法拍屋的代標專家,是成功關鍵。

TORO法拍代標|業界口碑第一的法拍屋專家

📮TORO(黃瑋諭),深耕法拍屋市場超過18年,專注於法拍交易、法拍屋投資與代標服務,累積豐富實戰經驗,並以「合法、透明、專業」著稱。

✅TOROESTATE創辦人

法拍屋教學教育資深講師👨‍🏫

多家媒體、網路專欄不動產分析專家📢

曾參與多件大型企業辦公室、豪宅、廠房之法拍代標案件🏢

不只協助投標,更替客戶控管風險,打造長期穩定的法拍投資策略👑

✅法拍代標實績|累積成交金額突破50億

法拍成交案件數:300+件

累積成交總金額:超過50億元

102年單店成交金額:17億

111年單店成交金額:30億

👉業績來自實力,口碑來自成果。

✅為什麼選擇TORO法拍代標?

✔專業法律顧問全程把關

配合專業律師團隊確保交易合法、安全降低潛在法律風險

✔法拍物件完整調查

產權結構、登記風險全面審查使用狀況、占用與點交可能性分析避免「買到不能住、不能用的法拍屋」

✔客製化投標策略

投標價格精準分析市場行情比對依現場狀況即時調整投標金額

✅TORO法拍代標完整流程

①委託前諮詢

法拍流程完整說明

成本、稅費、銀行貸款分析

投資風險與報酬評估

②委託後分析

預估得標價格

銀行鑑價與融資可行性

現場實地調查

③投標當日

全程陪同或代理投標

現場觀察投標人數

即時判斷投標策略

④成功得標後

銀行撥款與法院流程協助

點交程序與文件處理

協助排除占用、後續出租或轉售規劃

✅法拍代標收費方式(透明公開)

⭕️點交法拍屋:3%

⭕️不點交法拍屋:5%

❌️未得標:完全不收費

👉成功才收費,與客戶站在同一陣線。

✅投標當日必備文件

⭐️投標人身分證公司投標需附法人登記資料

⭐️投標人印章/法人大小章

⭐️投標保證金(拍賣底價20%)



✅台北/新北法拍投標地點與電話

台北地方法院

台北市博愛路131號

📞(02)2314-6871

新北地方法院

新北市土城區青雲路152號6樓

📞(02)2261-6714

士林地方法院

台北市內湖區民權東路六段91號

📞(02)2791-1521

台灣金服公司

台北市大安區忠孝東路四段300號10樓

📞(02)8771-1168

✅聯絡TORO|法拍代標諮詢專線

⭐️0980-758-080

👉一對一諮詢,協助你避開法拍陷阱,精準得標。

坪數說明
建物登記總坪數289.56土地登記總坪數50.42
主建物坪數289.56停車位坪數36.52
附屬建物坪數公共設施坪數95.89
增建坪數地下室坪數
房子聯絡人資訊
聯絡人姓名TORO 黃瑋諭
(煩請告知聯絡人,您是在889房子網看到這則廣告,真摯感恩您的幫忙)
Line加入好友 Line加入好友
手機
0980-758-080(TORO 黃瑋諭)
所屬公司名稱鑫創資產管理有限公司
公司電話0980758080公司傳真鑫創資產管理有限公司
公司地址新北市新莊區中環路二段423號1樓
網址http://www.toro591.tw
贊助商廣告
桃園廠房,桃園廠房出租,桃園廠房出售
新北法拍屋,新北市法拍屋,新北法院法拍屋
新北汐止商辦出售
汐止法拍商辦-1
汐止法拍商辦-1
汐止法拍商辦-2
汐止法拍商辦-2
物件地圖
物件留言
請注意,如果您詢問的內容與物件不相符合或是廣告,經過審核,系統將會直接刪除您的發問內容
等待圖示
檢舉物件不實
等待圖示
黃金曝光

07-7963288客服電話
本房子網站為租用式開放仲介網站建置平台,僅提供房子仲介會員刊登-新北市汐止區商辦法拍-等房子/土地/廠房/法拍資訊參考,並不涉入任何諮詢、交易。物件(服務)聯絡人公佈的圖文影音資訊若有侵犯智財權或與客戶聯絡交易過程中若衍生民事或刑事等法律問題, 皆與本網站無關。
電話:07-7963288