|
|
| 房子基本資料 |
|---|
| 案名 | 淡水區淡金路|公寓四樓|近淡海新市鎮 | 案號 | 113高104448115/01/08 (四)10:30 |
|---|
| 地址 | 新北市淡水區淡金路三段46巷22號4樓 |
|---|
| 銷售狀態 | 待標中 | 售價 | 售342萬售275萬 |
|---|
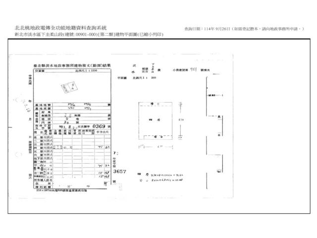
| 房子類型 | 法拍公寓 | 總登記坪數 | 26.25 坪 |
|---|
| 格局 | 0房 | 屋齡 | 44年 |
|---|
| 每坪單價 | 10.48萬/坪 | 公設比 | |
|---|
| 車位 | 沒有車位 | 法拍屋 | 本物件是法拍屋 拍次 : 第3拍 點交 開標日期 : 2026/01/08 (四) 10:30
|
|---|
| 建物所在樓層 | 4樓/共4樓 | 管理費 | |
|---|
| 管委會 | 沒有 | 中庭 | 沒有 | | 電梯 | 沒有 | 是否為凶宅 | | | 300公尺內嫌惡設施 | | 面前道路 | | | 面寬 | | 縱深 | | | 邊間 | 不是 | 房子銷售來源 | 不動產經紀人/專業仲介 |
|---|
| 房子特色 | 【法院筆錄內容】 1‧901建號拍定後點交。
2‧民國114年2月17日現場執行時,經開鎖入內檢視為空屋,已斷水斷電,四周牆面因嚴重漏水均已剝落,天花板及樑柱有部分鋼筋裸露情形。拍賣標的經查相關主管機關後,並無發生非自然死亡情形,亦無發生過火災事件,亦非屬列管之海砂屋、地震受損屋。依強制執行法第113條準用第69條之規定,拍賣物買受人就物之瑕疵無擔保請求權,不得於拍定後主張,請應買人留意。惟現在實際情形如何,仍請應買人自行查明注意。
3‧投標人應自行查明債務人有無積欠管理費,並注意拍定後民法第826條之1第3項規定之適用問題。
《拍賣抵押物》
【保證金】
55萬 【拍賣履歴】
一拍2025/10/23流標底標價格426萬
二拍2025/11/20流標底標價格342萬
三拍2026/01/08底標價格275萬
四拍底標價格218.1萬
【焦點法拍履歴】
👩🏻⚖️從業二十年以上經驗|競競業業|正派經營
🎯投標準備⇥法拍流程說明|標單填寫|案件現場勘查有無特殊情事|成本評估分析
💰銀行貸款⇥法拍物件估價|投標人財力評估|銀行代墊款協助辦理|最高八成
🏡拍定得標⇥強制執行書狀、履勘陳報書狀往返|債務人搬遷協商|遺留物造冊查估
🎁委託代標⇥免費|委託代標未得標⇥免費
🏢鑫創資產管理有限公司
顏麗杏0911-965339營業員證號:(101)登字第212862號
連真甄0909-031993營業員證號:(101)登字第192002號
更多物件☞焦點法拍
經紀人李彥槿:109北市經證字第02110號 |
|---|
| 坪數說明 |
|---|
| 建物登記總坪數 | 26.25 | 土地登記總坪數 | 10.4 |
|---|
| 主建物坪數 | 21.57 | 停車位坪數 | |
|---|
| 附屬建物坪數 | 4.68 | 公共設施坪數 | |
|---|
| 增建坪數 | | 地下室坪數 | |
|---|
| 周邊環境 |
|---|
| 生活機能 | | 鄰近交通 | |
|---|
| 鄰近地標 | 近淡海新市鎮 | 公園綠地 | |
|---|
| 鄰近學區 | | 捷運站 | |
|---|
| 房子聯絡人資訊 |
|---|
| 聯絡人姓名 | 小顏 (煩請告知聯絡人,您是在889房子網看到這則廣告,真摯感恩您的幫忙) | Line加入好友 | |
|---|
| 手機 |  0911-965-339(小顏) | 所屬公司名稱 | 鑫創資產管理有限公司 |
|---|
| 公司電話 | | 公司傳真 | |
|---|
| 公司地址 | 新北市新莊區中環路二段423號一樓 |
|---|
| 網址 | http://www.1314home.tw |
|---|
贊助商廣告
售新北公寓
淡水公寓法拍-1 淡水公寓法拍-2 淡水公寓法拍-3 淡水公寓法拍-4 淡水公寓法拍-5 淡水公寓法拍-6 淡水公寓法拍-7 淡水公寓法拍-8 淡水公寓法拍-9 淡水公寓法拍-10 淡水公寓法拍-11
|
|
|
|
物件地圖
|
物件留言
請注意,如果您詢問的內容與物件不相符合或是廣告,經過審核,系統將會直接刪除您的發問內容
|
|
檢舉物件不實
|
|
黃金曝光
 - 公寓_頂加
- 22.28坪
- 售642萬
 - 公寓
- 31.42坪
- 售749萬
 - 公寓
- 26.63坪
- 售1048萬
 - 公寓_瓊泰河濱公園 / 3房
- 22.28坪
- 售642萬
|
|
相似物件
 - 公寓
- 26.01坪
- 售261萬8000元
 - 公寓
- 26.25坪
- 售275萬
 - 公寓
- 32.71坪
- 售252萬8000元
 - 公寓
- 26.25坪
- 售275萬
|