東區透天
首頁
|
申請房仲網站
|
房子導覽
|
土地導覽
|
法拍屋導覽
|
法拍地導覽
|
廠房導覽
|
房仲導覽
首頁
台北
新北
基隆
宜蘭
花蓮
桃園
新竹
苗栗
台中
南投
彰化
雲林
嘉義
台南
高雄
屏東
澎湖
台東
現在位置:
首頁
›
台南房子
›
東區房子
›
東區透天-台南市東區東寧路
最後更新:24小時內
檢舉物件不實
|
列印
|
物件諮詢
|
物件地圖
台南透天
東區透天
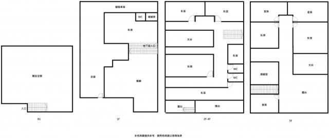
房子基本資料
案名
東寧路/南紡夢時代~大地坪61坪透天店住
案號
3956
地址
台南市東區東寧路
銷售狀態
帶看中
售價
售6688萬
房子類型
透天_店面
總登記坪數
162.66 坪
格局
21房
,2廳,7衛,2陽台,1廚房
屋齡
44年
每坪單價
41.12萬/坪
公設比
車位
門口
法拍屋
不是
建物所在樓層
共4樓
管理費
管委會
沒有
中庭
沒有
電梯
沒有
是否為凶宅
不是
300公尺內嫌惡設施
面前道路
10米路
面寬
縱深
邊間
房子銷售來源
不動產經紀人/專業仲介
房子特色
近東寧路~成大~長榮路~南紡商圈~
(1).交通四通八達.東區最佳老屋有天井
(2).緊鄰各長榮女中.南一中.成大優質學區
(3).頂級商圈.商家文武百市.開店優選
(4).不失優雅之處.大地坪好運用
(5)W寬約8.2米*深度25米.臨路10米
坪數說明
建物登記總坪數
162.66
土地登記總坪數
61.4
主建物坪數
停車位坪數
附屬建物坪數
公共設施坪數
增建坪數
地下室坪數
周邊環境
生活機能
鄰近交通
鄰近地標
公園綠地
鄰近學區
東光國小,後甲國中
捷運站
房子聯絡人資訊
聯絡人姓名
陳盈秀
(煩請告知聯絡人,您是在889房子網看到這則廣告,真摯感恩您的幫忙)
Line加入好友
手機
0928-010-990(陳盈秀)
所屬公司名稱
誠昱不動產企業社(住商成大東興店)
公司電話
0928010990 (LINE)
公司傳真
公司地址
台南市永康區小北路30號
網址
http://www.台南秀秀房仲網.tw
贊助商廣告
台南透天
台南東區透天-1
台南東區透天-2
台南東區透天-3
台南東區透天-4
台南東區透天-5
台南東區透天-6
台南東區透天-7
台南東區透天-8
台南東區透天-9
台南東區透天-10
台南東區透天-11
台南東區透天-12
台南東區透天-13
台南東區透天-14
台南東區透天-15
物件地圖
到Google查看地圖
到Google查看街景
物件留言
請注意,如果您詢問的內容與物件不相符合或是廣告,經過審核,系統將會直接刪除您的發問內容
檢舉物件不實
黃金曝光
仁德忠義路
透天 / 5房
55坪
售1980萬
仁德忠義路
透天 / 4房
47.96坪
售1800萬
相似物件
安南海尾路
透天_別墅
135.58坪
售6680萬
北區和緯路五段
透天_店面 / 9房
158.89坪
售6800萬
善化龍目井路
透天_店面
163.57坪
售6800萬
東區裕農一街
透天_別墅
155.48坪
售6300萬
請注意:此案件已下架
資料處理中,請稍後...