| 房子基本資料 |
|---|
| 案名 | 507 昭揚樂【大樓附車位】桃園區國豐八街28號12樓 | 案號 | 桃園114五67734 |
|---|
| 地址 | 桃園市桃園區國豐八街28號12樓( 4年屋 )( 4年屋 )( 4年屋 )( 4年屋 )( 4年屋 )( 4年屋 | 社區/大樓 | 昭揚樂 |
|---|
| 銷售狀態 | 待標中 | 售價 | 售1433萬6000元 |
|---|
| 房子類型 | 法拍大樓_華廈_4年屋 | 總登記坪數 | 55.56 坪 |
|---|
| 格局 | 3房,2廳,2衛,2陽台,1廚房 | 屋齡 | 4年 |
|---|
| 每坪單價 | 25.8萬/坪 | 公設比 | 33 % |
|---|
| 車位 | B1-113號坡道式平面車位 | 法拍屋 | 本物件是法拍屋 拍次 : 3 開標日期 : 115/05/07(四) 14:30
|
|---|
| 建物所在樓層 | 12樓/共15樓 | 管理費 | |
|---|
| 管委會 | 有 | 中庭 | 有 |
| 電梯 | 有 | 是否為凶宅 | 不是 |
| 300公尺內嫌惡設施 | | 面前道路 | |
| 面寬 | | 縱深 | |
| 邊間 | 不是 | 房子銷售來源 | 不動產經紀人/專業仲介 |
|---|
| 房子特色 | 104法拍網代標//透明房訊 //法拍讀書會//透明實價網//投資課程㊣㊣㊣業界最大法拍屋專業機構㊣㊣㊣ 法拍個案拍賣資訊均與 司法院 // 台灣金融資產服務股份有限公司// 法務部行政執行署拍賣資訊同步刊登,隨時更新!!! ★法拍屋不提供賞屋服務→可透過地政機關建物平面圖、位置圖等資料分析判斷之★
本件拍賣資訊節錄: 點交情形→據本院民國114年7月8日查封筆錄所載,查封時債務人在場,債務人稱有停車位於地下一樓之編號113號。本件僅建物拍定後依現況點交,其餘部分因係應有部分,故不點交。本件執行標的建物部分,本院已儘量將調查所得之輻射屋、海砂屋、地震受創、嚴重漏水、火災受損、建物內有非自然死亡或其他足以影響交易之特殊情事等項,於使用情形欄載明,如使用情形欄未特別載明,即表示經本院以現場調查等方式予以調查後尚未發現有上開影響交易價格之情形。
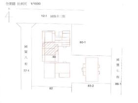
謄本資料→[謄本]:總坪數55.56坪[主建坪28.92坪,附屬坪2.69坪,停車坪8.40坪(建號:4757),公設坪15.55坪(建號:4757)][RC造/住家用]
是【大學法律學系的法學士】→1996年畢業 也是【通過國家考試及格執業22年的代書】→2004年迄今 更是【任職律師事務所職司法律相關事務31年的法務經理】→1995年迄今 能精準為您分析判讀法拍個案的觸角,維繫您的個案權益。 專業指名:張世興代書 服務專線:02-2270-0600 行動電話:0986-666-000
公司名稱:一零四法拍網股份有限公司/統一編號28306523 經紀人名字&字號:林桂英/北市經證第001243號 營業員名字&證照號碼:張世興/(107)登字第331706號
個案物件均依各拍賣機關拍賣公告底價投開標.如當拍未拍定時,除經債權人聲明指定底價外.原則依前拍底價酌減20%估算次拍底價(強制執行法第91條、92條參照) 【第一拍:2240萬115年02月26日流標】 【第二拍:1792萬115年04月02日流標】 【第三拍:1433.6萬115年05月07日待標】 【公告應買:萬年月日】 【第四拍:萬年月日】
張世興代書→其他法拍屋搜尋網站: H0USEINFO→ http://www.沿金標法拍.tw 樂屋網→ https://vip.rakuya.com.tw/0986666000/sell |
|---|
| 坪數說明 |
|---|
| 建物登記總坪數 | 55.56 | 土地登記總坪數 | 7.39 |
|---|
| 主建物坪數 | 28.92 | 停車位坪數 | 8.4 |
|---|
| 附屬建物坪數 | 2.69 | 公共設施坪數 | 15.55 |
|---|
| 增建坪數 | | 地下室坪數 | |
|---|
| 房子聯絡人資訊 |
|---|
| 聯絡人姓名 | 張世興 (煩請告知聯絡人,您是在889房子網看到這則廣告,真摯感恩您的幫忙) | Line加入好友 | |
|---|
| 手機 |  0986-666-000(張世興) | 所屬公司名稱 | 一零四法拍網股份有限公司 / 統一編號 28306523 |
|---|
| 公司電話 | 沿金標法拍◆(02)2270-0600 ★ 0986-666-000 張世興代書◆『法拍』購屋首選 | 公司傳真 | (02)2274-0884 |
|---|
| 公司地址 | 新北市土城區金城路二段396號11樓 |
|---|
| 網址 | http://www.沿金標法拍.tw |
|---|