桃園大溪透天法拍

房子基本資料
案名埔頂公園,透天,仁德七街28巷20號 案號114梅64597
地址桃園市大溪區仁德七街28巷20號
銷售狀態待標中售價
售2210萬
房子類型法拍透天 總登記坪數83.82 坪
格局屋齡21年
每坪單價26.37萬/坪公設比
車位一樓平面車位法拍屋 本物件是法拍屋
拍次 : 1
開標日期 : 115/5/12
建物所在樓層1~4/4管理費
管委會中庭
電梯 未知 是否為凶宅
300公尺內嫌惡設施 面前道路
面寬 縱深
邊間房子銷售來源不動產經紀人/專業仲介
房子特色
貸款才是決勝點,提供預審,保證核貸
擔任『台灣不動產拍賣協會』監事

◆己經查封,無法看室內◆
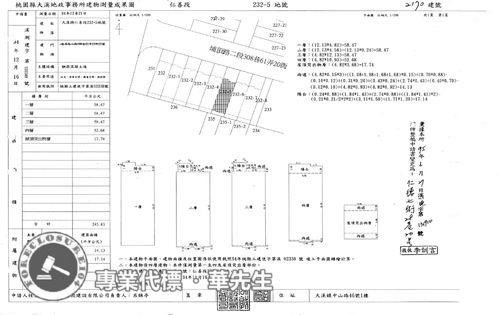
◆門牌:仁德七街28巷20號
◆主建物:69坪
◆附屬:14.82坪
◆增建:5.69坪
◆土地:29.16坪
◆土地現值【115年公告現值:51000元/㎡】
◆房屋用途:RC造/住宅,停車空間,機電空間,樓梯間
◆房屋樓層:所在1~4樓/總樓層4樓
◆房屋朝向:朝東北

◎車位:一樓平面車位
◎另增建5.69坪
◎交通動線:公車站(仁德街口)
◎生活機能:超商、藥局、市民活動中心、咖啡廳、火鍋、牛排
◎鄰近學校:仁善國小
◎公園綠地:仁和棒球場、埔頂公園
【法院筆錄】●點交情形→點交●
1‧查封時債務人在場稱建物為其與家人同住,於1樓設有神明廳,拍定後依現況點交;但如有其他依法不能點交之情事,本院得不點交。
2‧編號2建物未辦建物所有權第一次登記,拍定人無法逕持權利移轉證書辦理所有權登記,且如經建築主管機關認定為違章建築,拍定人應自行承擔受拆除之危險;又當事人與拍定人不得以面積不符,請求增減價金或撤銷拍定。《給付票款》

※流標打8折,概以執行公告為準
第一拍05/12底標價:2210萬
第二拍未定底標價:1768萬
第三拍未定底標價:1415萬
第四拍未定底標價:1274萬

王牌經理人,十六年以上法拍經驗豐富
眼光最精準,代標多筆億元以上的案件
在地最深耕,資源豐富廣闊人脈執行力
協助自用者,找到理想實用的房屋圓夢
幫助投資人,創造物件最高投資報酬率
最專業團隊,讓您案件事半功倍又圓滿

【在地深耕,眼光精準,人脈廣闊】
■產權清楚、案件評估、排除瑕疵事故
■全程負責、快速交屋、拍後不被騷擾
■代墊利率6.3%、額度8成、手續費0.3%
■房貸利率2.85%、免排隊、立即撥款
■法拍屋代墊款、需要資金、歡迎找我

104法拍網|透明房訊|全國最大
◆規模最大◈歷史最久◆
全國七處分公司,300多位編制人員
成立於1986年,全國16家法院駐點
◆專業最強◈全國唯一◆
全國超過1800場授課專業講習
100坪倉庫,造冊拍賣遺留物
◆正派經營◈開立發票◆
營業員(99)登159091號
經紀人(96)年北市經證字01243號
一零四法拍網(股),統編28306523
◆愛心傳播◈每件捐款5000元◆
至「伊甸社會福利基金會」

能看屋的,網頁會註明。一般法拍屋查封之後無法入內參觀,可依據建物平面圖推斷室內格局是否方正,或參考樓上樓下鄰居房屋。(預約看屋留言,一律不回)
坪數說明
建物登記總坪數土地登記總坪數29.16
主建物坪數69停車位坪數
附屬建物坪數14.82公共設施坪數
增建坪數5.69地下室坪數
房子聯絡人資訊
聯絡人姓名經理:華國峰 / 特助:李佩玟
(煩請告知聯絡人,您是在889房子網看到這則廣告,真摯感恩您的幫忙)
Line加入好友 Line加入好友
手機
0916-000-104(經理:華國峰 / 特助:李佩玟)
所屬公司名稱透明房訊 ,104法拍網(股)
公司電話(02)8262-5555 / (03)337-5555公司傳真買賣一下子、服務一輩子
公司地址新北市土城區金城路二段396號11樓 / 桃園市桃園區莊敬路一段346號4樓
網址http://www.104法拍屋.tw
贊助商廣告
大桃園廠房,大桃園工業地,大桃園工業地廠房
桃園廠房出租,桃園工業地,桃園廠房工業地
賣桃園大溪透天
大溪法拍透天-1
大溪法拍透天-1
大溪法拍透天-2
大溪法拍透天-2
大溪法拍透天-3
大溪法拍透天-3
大溪法拍透天-4
大溪法拍透天-4
大溪法拍透天-5
大溪法拍透天-5
大溪法拍透天-6
大溪法拍透天-6
大溪法拍透天-7
大溪法拍透天-7
大溪法拍透天-8
大溪法拍透天-8
物件地圖
物件留言
請注意,如果您詢問的內容與物件不相符合或是廣告,經過審核,系統將會直接刪除您的發問內容
等待圖示
檢舉物件不實
等待圖示
黃金曝光
相似物件

07-7963288客服電話
本房子網站為租用式開放仲介網站建置平台,僅提供房子仲介會員刊登-桃園大溪透天法拍-等房子/土地/廠房/法拍資訊參考,並不涉入任何諮詢、交易。物件(服務)聯絡人公佈的圖文影音資訊若有侵犯智財權或與客戶聯絡交易過程中若衍生民事或刑事等法律問題, 皆與本網站無關。
電話:07-7963288