| 房子基本資料 |
|---|
| 案名 | 汐止東湖菜市場商圈法拍屋,瓏山林社區獨棟別墅附車位 | 案號 | 一拍【113快37327】 |
|---|
| 地址 | 新北市汐止區忠三街39巷53號4層樓獨棟透天附車位,法拍屋代標 專線0913-303663 +LINE | 社區/大樓 | 瓏山林(聯邦建設) |
|---|
| 銷售狀態 | 待標中 | 售價 | 售4130萬 |
|---|
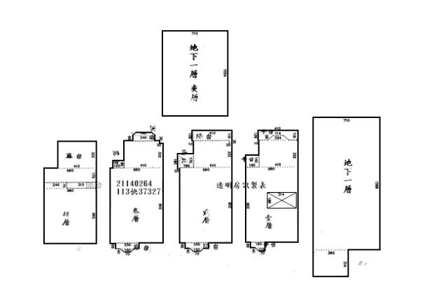
| 房子類型 | 法拍透天_別墅_金龍湖風景區 | 總登記坪數 | 165.13 坪 |
|---|
| 格局 | 4房,3廳,3衛,4陽台,1廚房 | 屋齡 | 35年 |
|---|
| 每坪單價 | 25.01萬/坪 | 公設比 | |
|---|
| 車位 | 48號 | 法拍屋 | 本物件是法拍屋 拍次 : 一拍 開標日期 : 115/1/8(四)
|
|---|
| 建物所在樓層 | 4層樓獨棟透天別墅 | 管理費 | 每月2000元(含垃圾處理費) |
|---|
| 管委會 | 有 | 中庭 | 有 | | 電梯 | 未知 | 是否為凶宅 | 不是 | | 300公尺內嫌惡設施 | | 面前道路 | | | 面寬 | | 縱深 | | | 邊間 | | 房子銷售來源 | 不動產經紀人/專業仲介 |
|---|
| 房子特色 | ♛一零四法拍網(創立40週年)業界最大/專業團隊/全省服務/值得託付~
♠︎專業代標『吳先生』全程為您服務♠︎代標專線☎0913303663點入+line
💥💥💥刊●點交情形→詳如備註●
1‧3344建號拍定後點交,3354建號係拍賣不動產應有部分,拍定後不點交。
2‧民國113年10月9日現場調查時,經開鎖入內檢視為空屋,無人使用,車位編號為48號,目前無人使用。惟現在實際情形如何,仍請應買人自行查明注意。
3‧拍賣標的經臺灣臺中地方法院113年度聲扣字第3號刑事裁定准予扣押,臺中市政府警察局刑事警察大隊以113年1月15日中市警刑七字第1130002192D號函辦理禁止處分之登記在案。本件拍定後經拍定人依法繳足價金,本院核發權利移轉證書後,將依最高法院107年度台抗字第445號裁定意旨,發函通知禁止處分機關函請地政機關塗銷禁止處分登記,俾利拍定後辦理移轉登記,以達保全沒收、追徵同時兼顧交易安全維護之目的,請投標人特別注意。
4‧投標人應自行查明債務人有無積欠管理費,並注意拍定後民法第826條之1第3項規定之適用問題。
《清償票款》
[他項權利:拍後塗銷]
特別提醒謄本資料:3344建號另有附屬建物48.44㎡,與公告不符,請應買人自行確認注意!
[謄本]:總坪數165.13坪[主建坪127.51坪,附屬坪14.65坪,停車坪22.46坪(建號:3354),公設坪0.51坪(建號:3356)][RC造/住家用]登內容以公告機關為準請投標人注意🔥🔥🔥
法院筆錄:
⚖️拍賣機關公告
📣司法院法拍屋公告📣國有財產署標售不動產資訊📣台灣金服含未辦繼承法拍物件
📣法拍屋拍定價公告📣法務部行政執行署法拍物件📣產權清楚☆強制執行法【77條”81條】
🔎法拍一點不燒腦~~眉角全都在這邊~~懶人包裡報您知~~
📣📣104法拍網/透明房訊/法拍屋,土地全省最新拍賣資訊
📣台北法拍屋快搜📣新北法拍屋快搜📣桃園法拍屋快搜📣台中法拍屋快搜
♠北區熱門法拍屋♠北區法拍屋精選♠樂屋網
⏳法拍屋代標流程~~
1.銀行代墊尾款:(最高可貸八成)2.現場合理價格評估
3.得標協助辦理過戶4.點交全程不用陪同
5.和諧交付等您入住6.未得標不收取費用
☛法拍代標找專業~☛投標必中下決心~☛過了這村沒那店~☛別讓資金睡著了
❤誠摯讓您感受最優質的代標全程服務
自備2成輕鬆成家~特約銀行核撥快速~只有買方安心選購~彈性出價理財首選~
❦免費諮詢可+line❦望您來電問透透❦消除疑慮再委託❦收費契約最透明
❦❦❦❦❦❦❦❦❦❦❦❦❦❦❦❦❦❦❦❦❦❦❦❦❦❦❦❦❦
雙北助理專線☎02-22650614桃園助理專線☎03-3293994全省☎0913303663
🏘️經紀業:財欣不動產管理顧問有限公司統一編號:22857204
✍經紀人:(97)年北市經證字001562號
💼營業員:(98)登字第133601號
❦❦❦❦❦❦❦❦❦❦❦❦❦❦❦❦❦❦❦❦❦❦❦❦❦❦❦❦❦❦❦❦❦❦❦❦
生活e點通~
📣財政部新青安成家📣全國地政電子謄本系統📣地籍圖便民服務📣房地合一專區
📣台北捷運路線圖📣新北捷運路線圖📣桃園捷運路線圖📣台中捷運路線圖 |
|---|
| 坪數說明 |
|---|
| 建物登記總坪數 | 165.13 | 土地登記總坪數 | 55.14 |
|---|
| 主建物坪數 | 127.51 | 停車位坪數 | 22.46 |
|---|
| 附屬建物坪數 | 14.65 | 公共設施坪數 | 0.51 |
|---|
| 增建坪數 | | 地下室坪數 | |
|---|
| 周邊環境 |
|---|
| 生活機能 | 內溝溪生態園區,東湖菜市場大湖公園,金龍湖.,老鷹尖,柚子山,翠湖,湖光市場,康寧醫院,東湖生活圈,東湖國小,東湖國中,內湖科技園區,南港科技園區,東湖日湖百貨,哈拉影城商圈,內湖三軍總醫院,總戶數約1442戶,管理費每月2000元 | 鄰近交通 | 捷運東湖站,國道1號汐止交流道,國道3號汐止交流道,公車,社區大門旁就是公車總站,可搭乘281,藍12,小S,S1,汐止社區巴士7社后線,汐止社區巴士8八連線等號公車 |
|---|
| 鄰近地標 | | 公園綠地 | |
|---|
| 鄰近學區 | | 捷運站 | |
|---|
| 房子聯絡人資訊 |
|---|
| 聯絡人姓名 | 吳先生 (煩請告知聯絡人,您是在889房子網看到這則廣告,真摯感恩您的幫忙) | Line加入好友 |
|
|---|
| 手機 |  0913-303-663(吳先生) | 所屬公司名稱 | 財欣不動產管理顧問有限公司/專業代標/營業員(97)經證字號001562 |
|---|
| 公司電話 | 專業代標 吳先生 0913303663 02-22650614 03-3293994 | 公司傳真 | 02-22740884 03-3343929 |
|---|
| 公司地址 | 新北市土城區金城路二段396號11樓/桃園市莊敬路一段346號4樓/統編:22857204 |
|---|
| 網址 | http://www.熱門法拍屋.tw |
|---|
贊助商廣告
新北汐止透天
汐止法拍透天-1 汐止法拍透天-2 汐止法拍透天-3 汐止法拍透天-4 汐止法拍透天-5 汐止法拍透天-6 汐止法拍透天-7 汐止法拍透天-8 汐止法拍透天-9 汐止法拍透天-10
|