高雄市三民區大樓
首頁
|
申請房仲網站
|
房子導覽
|
土地導覽
|
法拍屋導覽
|
法拍地導覽
|
廠房導覽
|
房仲導覽
首頁
台北
新北
基隆
宜蘭
花蓮
桃園
新竹
苗栗
台中
南投
彰化
雲林
嘉義
台南
高雄
屏東
澎湖
台東
現在位置:
首頁
›
高雄房子
›
三民區房子
›
高雄市三民區大樓-高雄市三民區河堤路
最後更新:15小時內
檢舉物件不實
|
列印
|
物件諮詢
|
物件地圖
高雄大樓
三民區大樓
房子基本資料
案名
河堤公園|樓中樓|三房平車
案號
地址
高雄市三民區河堤路
銷售狀態
帶看中
售價
售1430萬
房子類型
大樓
總登記坪數
48.667 坪
格局
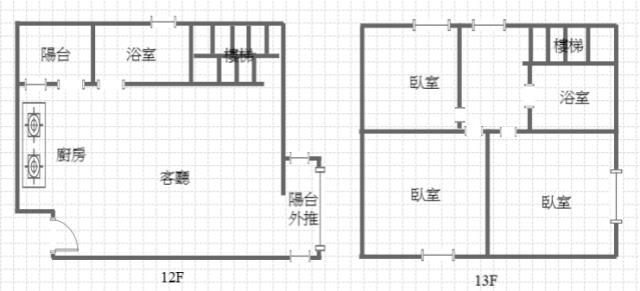
3房
,2廳,2衛,1陽台,1廚房
屋齡
28年
每坪單價
29.38萬/坪
公設比
車位
坡道式平面車位
法拍屋
不是
建物所在樓層
12~13樓/共14樓
管理費
2326元/月
管委會
有
中庭
有
電梯
有
是否為凶宅
不是
300公尺內嫌惡設施
面前道路
15米
面寬
縱深
邊間
房子銷售來源
不動產經紀人/專業仲介
房子特色
★高雄小天母河堤社區,面河堤公園,享天然綠意與陽光
★近學區.公園.河堤圖書館,一應俱全超便利
★近漢神巨蛋.義享天地、明誠裕誠商圈,優質地段
★明星學區:河堤國小、龍華國中,近河堤圖書館
★次高樓,樓中樓格局,規劃三房兩衛採光極優
★屋主持有13年,屋況好,兩間浴室都有重作,一卡皮箱可入住
★客廳旁陽台外推,實際使用空間更大,配B1獨立車位
宏琳建設-石琳好來屋
總戶數280
土地-持分
第四種住宅區
12F-12.66坪/13F-15.45坪/陽台-2.87坪
坪數說明
建物登記總坪數
48.4
土地登記總坪數
5.42
主建物坪數
28.12
停車位坪數
6.98
附屬建物坪數
2.87
公共設施坪數
10.68
增建坪數
地下室坪數
周邊環境
生活機能
佳
鄰近交通
便捷
鄰近地標
河堤公園
公園綠地
河堤公園
鄰近學區
河堤國小
捷運站
巨蛋
房子聯絡人資訊
聯絡人姓名
鍾溫雅(阿雅)
(煩請告知聯絡人,您是在889房子網看到這則廣告,真摯感恩您的幫忙)
Line加入好友
手機
0935-311-298(鍾溫雅(阿雅))
所屬公司名稱
永義房屋 高雄美術擁樂加盟店
公司電話
07-3150808 或0935-311-298
公司傳真
公司地址
高雄市鼓山區美術東二路530號
網址
http://www.168吉屋.tw
贊助商廣告
買高雄大樓
高雄三民區大樓-1
高雄三民區大樓-2
高雄三民區大樓-3
高雄三民區大樓-4
高雄三民區大樓-5
高雄三民區大樓-6
高雄三民區大樓-7
高雄三民區大樓-8
高雄三民區大樓-9
高雄三民區大樓-10
高雄三民區大樓-11
高雄三民區大樓-12
高雄三民區大樓-13
物件地圖
到Google查看地圖
到Google查看街景
物件留言
請注意,如果您詢問的內容與物件不相符合或是廣告,經過審核,系統將會直接刪除您的發問內容
檢舉物件不實
黃金曝光
楠梓惠豐街
大樓 / 3房
35.923坪
售898萬
左營立大路
大樓 / 3房
41.748坪
售1198萬
鼓山南屏路
大樓 / 4房
84.391坪
售4880萬
相似物件
前鎮一心二路
大樓 / 4房
51.25坪
售1537萬
前金中華三路
大樓 / 3房
38.791坪
售1888萬
仁武北屋北街
大樓 / 2房
33.432坪
售968萬
鼓山厚德路
大樓 / 4房
51.37坪
售1598萬
請注意:此案件已下架
資料處理中,請稍後...