| 房子基本資料 |
|---|
| 案名 | 中正區臨沂街法拍屋|東門市場商圈大樓附車位 | 案號 | 一拍【114職一132金】 |
|---|
| 地址 | 台北市中正區臨沂街59巷10號2樓附車位,法拍屋代標 專線0913-303663 +LINE | 社區/大樓 | 瀧園 |
|---|
| 銷售狀態 | 待標中 | 售價 | 售7660萬 |
|---|
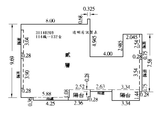
| 房子類型 | 法拍大樓_台北星辰飯店 | 總登記坪數 | 67.69 坪 |
|---|
| 格局 | 4房,2廳,2衛,2陽台,1廚房 | 屋齡 | 24年 |
|---|
| 每坪單價 | 113.16萬/坪 | 公設比 | |
|---|
| 車位 | 02號 | 法拍屋 | 本物件是法拍屋 拍次 : 一拍 開標日期 : 114/12/24(三)
|
|---|
| 建物所在樓層 | 2樓/共7樓 | 管理費 | |
|---|
| 管委會 | | 中庭 | | | 電梯 | 有 | 是否為凶宅 | 不是 | | 300公尺內嫌惡設施 | | 面前道路 | | | 面寬 | | 縱深 | | | 邊間 | | 房子銷售來源 | 不動產經紀人/專業仲介 |
|---|
| 房子特色 | ♛一零四法拍網(創立40週年)業界最大/專業團隊/全省服務/值得託付~
♠︎專業代標『吳先生』全程為您服務♠︎代標專線☎0913303663點入+line
💥💥💥刊登內容以公告機關為準請投標人注意🔥🔥🔥
法院筆錄:●點交情形→有點交●
1‧1372建號建物於114年2月6日現場查封時,該建物無門牌,並經現場與債權人之代理人確認,大樓2樓左側大門即為「臺北市中正區臨沂街59巷10號2樓」;具債權人陳報目前房屋為空屋,無人使用,故本件拍定後點交。
2‧拍賣標的經查相關主管機關後,並無發生非自然死亡情形,亦無發生過火災事件,亦非屬列管之海砂屋、輻射屋、地震受損屋,惟建物實際狀況須經專業人員辦理相關鑑定及偵測始能確認是否為海砂屋、有無輻射、有無地震受創,應由拍定人自行查明,請應買人注意。《台北地方法院案號:113年度司執宇字第146469號,給付票款》
[他項權利:拍後塗銷]
[謄本]:總坪數67.69坪[主建坪33.00坪,附屬坪4.31坪,停車坪6.80坪(建號:1377),公設坪23.58坪(建號:1377)][RC造/住家用]
⚖️拍賣機關公告
📣司法院法拍屋公告📣國有財產署標售不動產資訊📣台灣金服含未辦繼承法拍物件
📣法拍屋拍定價公告📣法務部行政執行署法拍物件📣產權清楚☆強制執行法【77條”81條】
🔎法拍一點不燒腦~~眉角全都在這邊~~懶人包裡報您知~~
📣📣104法拍網/透明房訊/法拍屋,土地全省最新拍賣資訊
📣台北法拍屋快搜📣新北法拍屋快搜📣桃園法拍屋快搜📣台中法拍屋快搜
♠北區熱門法拍屋♠北區法拍屋精選♠樂屋網
⏳法拍屋代標流程~~
1.銀行代墊尾款:(最高可貸八成)2.現場合理價格評估
3.得標協助辦理過戶4.點交全程不用陪同
5.和諧交付等您入住6.未得標不收取費用
☛法拍代標找專業~☛投標必中下決心~☛過了這村沒那店~☛別讓資金睡著了
❤誠摯讓您感受最優質的代標全程服務
自備2成輕鬆成家~特約銀行核撥快速~只有買方安心選購~彈性出價理財首選~
❦免費諮詢可+line❦望您來電問透透❦消除疑慮再委託❦收費契約最透明
❦❦❦❦❦❦❦❦❦❦❦❦❦❦❦❦❦❦❦❦❦❦❦❦❦❦❦❦❦
雙北助理專線☎02-22650614桃園助理專線☎03-3293994全省☎0913303663
🏘️經紀業:財欣不動產管理顧問有限公司統一編號:22857204
✍經紀人:(97)年北市經證字001562號
💼營業員:(98)登字第133601號
❦❦❦❦❦❦❦❦❦❦❦❦❦❦❦❦❦❦❦❦❦❦❦❦❦❦❦❦❦❦❦❦❦❦❦❦
生活e點通~
📣財政部新青安成家📣全國地政電子謄本系統📣地籍圖便民服務📣房地合一專區
📣台北捷運路線圖📣新北捷運路線圖📣桃園捷運路線圖📣台中捷運路線圖 |
|---|
| 坪數說明 |
|---|
| 建物登記總坪數 | 67.69 | 土地登記總坪數 | 16.33 |
|---|
| 主建物坪數 | 33.00 | 停車位坪數 | |
|---|
| 附屬建物坪數 | 4.31 | 公共設施坪數 | 23.58 |
|---|
| 增建坪數 | | 地下室坪數 | |
|---|
| 周邊環境 |
|---|
| 生活機能 | 新生市場,東門市場,私立巨勝幼兒園,大安森林公園,長流美術館台北館,幸安國小,台北星辰飯店,捷運東門站,建國北路高架道路, | 鄰近交通 | 國道1號圓山交流道,公車仁愛臨沂街口站,可搭乘37,222,270假日,270平日,630,651假日,651平日,仁愛幹線假日,仁愛幹線平日號公車 |
|---|
| 鄰近地標 | | 公園綠地 | |
|---|
| 鄰近學區 | | 捷運站 | |
|---|
| 房子聯絡人資訊 |
|---|
| 聯絡人姓名 | 吳先生 (煩請告知聯絡人,您是在889房子網看到這則廣告,真摯感恩您的幫忙) | Line加入好友 |
|
|---|
| 手機 |  0913-303-663(吳先生) | 所屬公司名稱 | 財欣不動產管理顧問有限公司/專業代標/營業員(97)經證字號001562 |
|---|
| 公司電話 | 法拍屋代標服務 吳先生 0913303663 02-22650614 03-3293994 | 公司傳真 | 02-22740884 03-3343929 |
|---|
| 公司地址 | 新北市土城區金城路二段396號11樓/桃園市莊敬路一段346號4樓/統編:22857204 |
|---|
| 網址 | http://www.法拍屋代標服務.tw |
|---|
贊助商廣告
中正區大樓買賣
台北拍賣大樓-1 台北拍賣大樓-2 台北拍賣大樓-3 台北拍賣大樓-4 台北拍賣大樓-5 台北拍賣大樓-6 台北拍賣大樓-7
|